Work Starts On Strathyre Home Remodel

1950’s Timber Home To Receive Major Refurb

Work has now started to fully refurbish this 1950’s timber home, located within the village of Strathyre. Lying just north of the picturesque Loch Lubnaig in the east area of the Loch Lomond & Trossachs National Park, Strathyre is a favourite place for locals and tourists alike.
The property is within a group of timber clad homes built in the 1950’s, on the south side of the village. We will be building extensions to the house, on two of the elevations. and also carrying out an extensive refurbishment over the remainder, including upgrade to the insulation, installing a modern heating system, and making the whole home more friendly and accessible to all. We will also be renewing many of the windows and fitting new roof tiles and timber cladding.
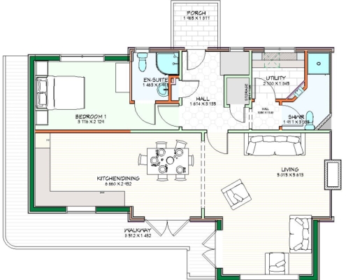
When complete, it will offer on the main floor, a spacious Living Room in open plan format with the Kitchen/Dining ; double Bedroom with En-Suite; Toilet and Utility-Mudroom. On the upper floor will be a further 2 double Bedrooms and a family Bathroom.
With recent snowfall, the need for insulation to these homes became very evident as the adjoining (heated) home lost all snow from the roof very quickly while our unheated property retained it, showing just how much heat was being lost by our neighbours. This is a common occurrence in properties of this age.

We offer a full service of Design; Fabricate & Supply, with additional services of Planning and Building Warrant preparation, submission and administration of the proposals (Scotland only). We can also usually offer an “Erect-To-Shell” service, and if within the Central Belt of Scotland, a full build service.